Нарьян

Жилой дом
255 m2
#
+3 фото
планировки
ОПИСАНИЕ ПРОЕКТА
Представьте, что у вас есть загородный дом, и каждые выходные к вам съезжаются друзья, потому что знают, что ходить в рестораны просто не имеет смысла.⁣⁣
⁣⁣
Ведь у них есть вы, а у вас — с каждым годом растущий навык готовить блюда со всего мира. Вы знаете, чем отличается вкус настоящей бастурмы, сколько анисовых звёздочек и ягод барбариса положить в казан и аккуратно срезаете донышко у чесночной головы, оставляя её неочищенной прямо поверх томящегося рагу, потому что так вкуснее. ⁣⁣⠀
⁣⁣⠀
У вас есть литые сковороды и сотейники из высококлассной стали. В кладовой вы храните сырную голову, которую не так-то просто доставить из Италии, но возможность готовить пасту прямо в ней — стоит всех усилий. ⁣⁣⠀⁣
⁣⁣⠀⁣
Но однажды ваш друг-охотник звонит вам посреди ночи и говорит, что добыл столько дичи, сколько ни за что не поместится на вашей кухне, но кто бы вас спрашивал. Назвался шефом, берись за дело. И в этот момент, оглядевшись, вы понимаете: «Один раз живем, могу себе позволить!»⁣⁣⠀⁣
⁣⁣⠀⁣
И, может быть, было не в точности так, но «Нарьян» появился от большой любви к кухне и дружеским встречам. Профессиональное пространство для готовки с разделочными зонами, почти ресторанным вариантом холодного цеха, комплексом мангалов, печей и, конечно же, обеденными комнатами.⁣⁣⠀⁣
⁣⁣⠀⁣
⁣⁣«Нарьян» — это беседка-барбекю с профессиональной кухней, где всё на своём месте. ⁣⁣

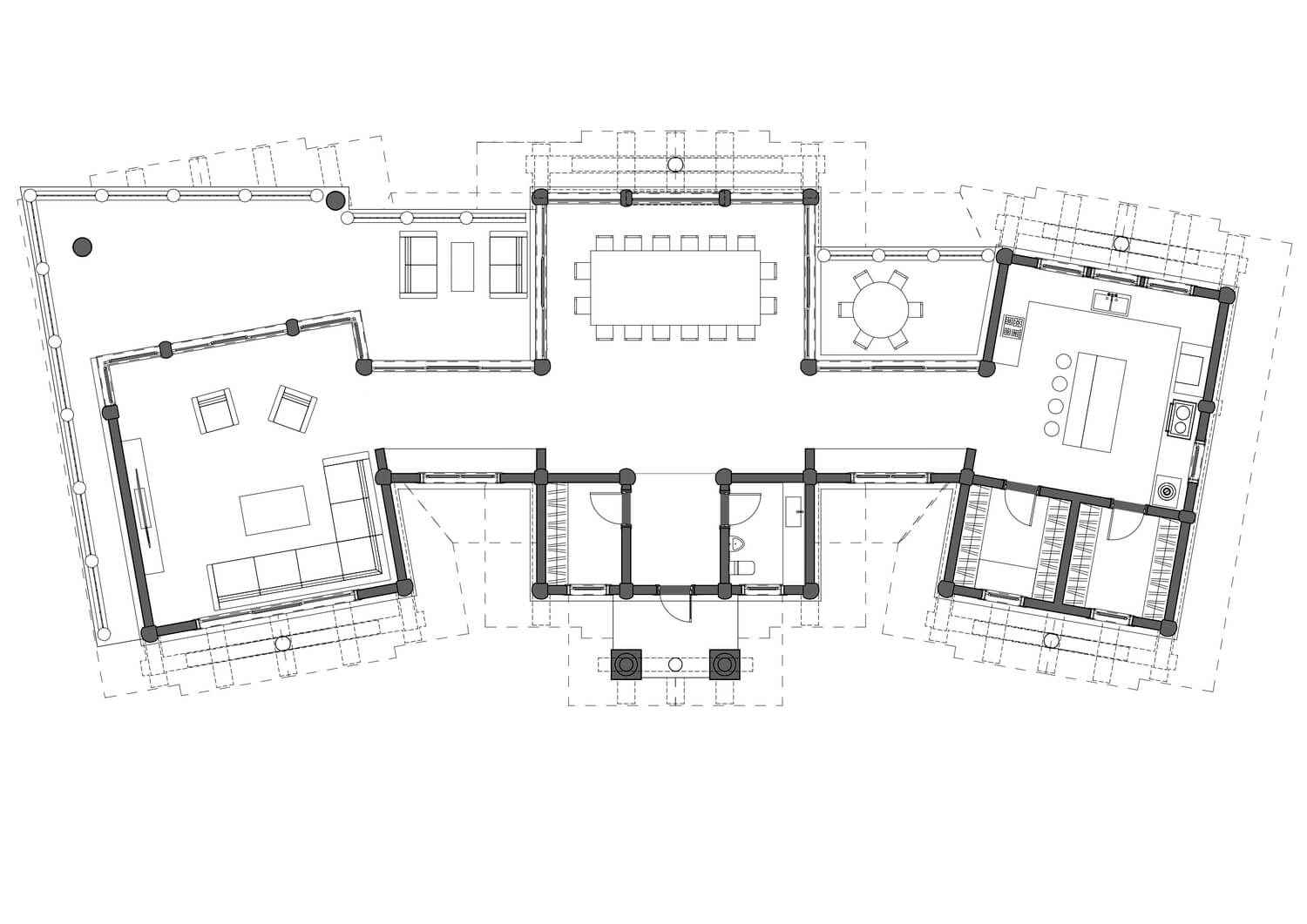
В центре беседки просторная столовая на 50 кв.м., с двух сторон окружённая малой и большой террасами. В левом крыле диванная зона, в правом — оборудованная кухня с кладовой и отдельными помещениями под разделку мяса и холодильные камеры. Для удобства гостей на входе в беседку гардеробная и туалетная комната.⁣⁣
ПАРАМЕТРЫ ПРОЕКТА
Назначение строения
Жилой дом
Площадь строения
255 m2
Стеновой материал
Cибирский кедр от 380 мм в вершине
Гарантия
10 лет
Технология
Бревенчатый каркас Post&Beam
СТОИМОСТЬ
Теплый контур
по запросу
Сруб
по запросу
ОСТАВИТЬ ЗАЯВКУ
Комплектация
Теплый контур
СРУБ
Друзья, все наши проекты уникальны. Все предоставленые
расчеты имеют ознакомительный характер и основаны на нашем
опыте работы с конкретным заказчиком и его пожеланиями
Вы можете ориентироваться на указанные цифры, но не забывайте,
что строительство деревянного дома — сложный и многогранный процесс.
Он состоит из множества работ, материалов и технологий,
которые меняются на усмотрение заказчика. Поэтому ваш дом может
стоить чуть больше или чуть меньше обозначенной суммы.
Проектные и подготовительные работы
Необходимые изыскания.
Подготовительная работа
Мы все делаем правильно.
Поэтому, прежде чем приступить
к проектированию и строительству,
проводим все необходимые изыскания,
геологию, замеры и топографическую
съемку и привязкой объектов.
Проектная документация
До начала работ мы подготовим для вас полный пакет
проектной документации. Он состоит из архитектурного,
инженерного, рабочего, ландшафтного и дизайн-проектов.
Это ваш гарант отсутствия ошибок при строительстве
и соблюдения всех нормативов.
После того, как работы будут закончены, вы получите
такой же объемный пакет исполнительных документов, где
зафиксировано фактическое исполнение проектных решений.
Они нужны в период эксплуатации здания — для точности
ремонтных работ и реконструкции инженерных сетей.
Плотницкая работа. Изготовление сруба
Изготовление и монтаж сруба
На основании утвержденного проекта мы изготовим сруб вашего
будущего дома. Все работы на этом этапе ведутся на производственной
базе Smart Wood в Подмосковье постоянной командой профессиональных
плотников. Вы в любой момент сможете посетить производство
и увидеть все своими глазами.
Общестроительные работы
Устройство фундамента
Для фундамента этого проекта мы выбрали утепленную
шведскую плиту. Несмотря на изначально высокую стоимость
материалов и работ по этому типу фундамента, в конечном расчете
он получится дешевле других видов благодаря уже готовой
конструкции чистового пола.
Устройство кровли
Нам нравится ручная работа. Для данного
проекта мы использовали фальцевую кровлю
ручной работы. Материал металл с полимерным покрытием 0,5 мм. Пирог
кровли с утеплением 250 мм, утеплитель
Parock, гидро и пароизоляционные пленки
немецкие Delta.
Устройство черновых фронтонов, наружных стен и внутренних перегородок
На основе проектной документации
и теплового расчета мы изготавливаем
деревянный каркас с утеплением, с паро
и гидро - изоляционными пленками Delta
и шумоизоляцией. Каркас изготавливается
под отделку, с покрытием ОСБ.
Инженерные системы
Мы очень тщательно подходим к выполнению
инженерных работ. В стоимость включены: ОВК система,
Вентиляция и кондиционирование, Электроснабжение, слаботочные
сети, пожарая сигнализация. Все системы объеденены в одну систему
управлкения, на основе протокола автоматизации KNX.
Мы работаем с лучшими мировыми производителями
инженерных систем Worman, Rehau, Artex
Устройство с утеплением
черновых полов и перекрытий
На основе проектной документации мы
производим устройство полов и перекрытий
под финишное покрытие полов. Пирог полов
состоит из утепления, шумоизоляции,
гидроизоляции Delta.
Устройство веранд,
террас, крылец
Открытые поверхности - это всегда не просто!
Снег, дождь, перемена климата, плохо влияют
на деревянные горизонтальные поверхности.
Мы умеем использовать нужные материалы
с необходимым покрытием для долговечности
и красоты крылец и веранд.
Устройство окон
Мы стараемся использовать в своих домах
деревянные трехкамерные окна. Наш
любимый материал - лиственница покрытая
Monocoat. Наличники устанавливаютя после
окончания финишной отделки.
Отделка цоколя
Один из завершающих этапов чистовой
внешней отделки. Здесь очень важна
искусная кладка и правильный выбор
материала.
Устройство каркаса
душевых
Очень интересно в деревянном строениии
совмещать усадочные и безусадочные
элементы, особенно это касается мокрых
зон где еще важна изоляция дерева от воды.
Чистовая
шлифовка дома
Шлифовка деревянных поверхностей дома
– это очень сложная и необходимая
операция. Дерево подготавливается под
покраску. В зависимости от объемов
материала, местонахождения дома и
графика производства работ, мы
подбираем шлифовку либо ручную либо
ручную и механическую.
Устройство
печи и камина
Это целая наука работать укладка печей
и камином, мы сотрудничаем со множеством
печников и каменьщиков. Очень важным
моментом является искусная отделка
устройства.
Отделка строения
Чистовая внешняя
отделка фронтонов и наружных стен
Дранка, декоративная доска, необрезная
доска, необрезная причерченная доска,
штукатурка и многое многое другое.
Вариантов отделки множество. Всегда
интересно совмещать массив с другими
фактурами
Внутренняя чистовая отделка
каркасов стен и фронтонов
Это один из первых и основных этапов
внутренней отделки. Мы производим все виды
работ на основе дизайн проекта.
Устройство чистового потолка
Потолки занимают особое место в интерьере деревянного
дома. На этапе создания интерьера будущего строения мы
стараемся использовать различные варианты и комбинации
материалов и технологий обработки, т.о. Делая потолок
в деревянном доме произведением искусства.
Чистовая покраска дома
Первое что мы делаем это выбираем цвет
покраски. Мы производим выкрасы и после
определения с цветом начинается покарска
строго соблюдая технологию производителя.
В своей работе мы используем лучших
производителей покрытий PNZ, Permachink,
Monocot
Укладка чистового пола
У нас покрашены все поверхности, работают инженерные системы
в тестовом режиме, готовы камины и печи. Сечас самое время
приступить к укладке систового пола. Ответственный этам.
Особенно не просто совмещать разного рода поверхности
к примеру плитку с деревом.
Монтаж плитки
На основе дизайн проекта, мы подберем
и доставим плитку для необходимых мест
ванны, душевых, кухни, топочных и
прихожих.
Устройство лестницы
Нам нравятся делать уникальные вещи
своими руками. Лестница в данном проекте
будет изготовлена из бревна кедра с простопью
в 150 мм, с перилами столярного качества.
Закупка и установка
сантехнических приборов
На основе плана производства работ
мы делаем график поставки материалов.
Важно чтобы все пришло вовремя и мы
могли установить все подготовки до
окончания отделки
Закупка и монтаж
технического света
Технический свет в деревянном доме –
подсветка в потолке второго света, внешняя
подсветка. Мы стараемся действовать строго
по разработанному проекту освещения.
Подсвечивая торцы , фермы и слепые зоны
строения. Работаем с производителями Erco,
Vnr, knx
Что не входит в стоимость, но необходимо
вам до конечного результата?
Комплектация
Мы не можем включить в стоимость комплектацию строения
мебелью и предметами интерьера. Так же если вы захотите особый
пол к примеру массив или интересную метлахскую плитку она не
войдет в указанную стоимость, но мы можем ее привезти и уложить
за дополнительные деньги
Дополнительные плотницкие,
столярные работы
В деревянном домостроении возможно украсить дом различными
интересными фигурами и инсталяциями. Мы относим эту работу к
комплектации и не можем ее включить в указанную стоимость.
Ландшафтные
работы
Пока мы не знакомы с вами и с вашим участком мы не сможем
даже примерно оценить этот вид работ. Но мы имеем опыт работы
и считаем что хороший ладшафтный проект и его реализация
не только придают полноценности вашему строению и участку
но и увеличивают екго ликвидности.
Сервисное
обслуживание
Деревянное строение - сложный технический продукт, требующий
постоянного ухода и профессионального обслуживания. Мы имеем
соственную сервисную команду специалистов которая будет
поддерживать ваше строение в идеальном состоянии
Каждый наш проект уникален. Мы не даем цену
за кубический метр материала, потому что рассчитываем
стоимость каждого строения с нуля. И она напрямую зависит
от конструктивных особенностей, места строительства
и ваших желаний.
Каждый наш проект уникален. Мы не даем цену
за кубический метр материала, потому что рассчитываем
стоимость каждого строения с нуля. И она напрямую зависит
от конструктивных особенностей, места строительства
и ваших желаний.
Проектные и подготовительные работы
Корректировка вашего
проекта или разработка
нового
Чаще всего мы реализуем
собственные идеи. Но мы можете прийти
к нам с готовым проектом стороннего
архитектора – в этом случае мы берем
на себя разработку деревянной
конструкции проекта.
Деревянные конструкции
Эта часть проектной документации необходима
для нашего производства. Включает в себя детальную
проработку каждого элемента сруба и конкретное
техническое задание для плотника.
Подготовительные работы
Заготовка леса
В зависимости от особенностей конкретного проекта в работе
мы используем свежеспиленный лес или сухой материал. На нашем
складе всегда есть запас материалов, но нужно помнить,
что их количество ограничено
Традиционно период заготовки леса длится с конца ноября по конец
марта. Поэтому задумываться об изготовлении сруба лучше в начале
осени — так вы успеете сформировать запрос и гарантированно
получите лучшие материалы.
Транспортировка
материала
Кедр и лиственницу мы везем с Алтая
и из Красноярского края, а сосну из
Кировска. Обычно доставка леса на нашу
производственную базу занимает около
недели, поэтому мы перевозим его
тентованными фурами – в них древесина
хранится лучше.
Первым делом после доставки
леса на производственную площадку
мы проходим по нему скобелями, чтобы
удалить кору, и обрабатываем его
антисептиком. После чего складируем
для дальнейшего использования.
Изготовление сруба
Планирование
Существует мнение, что при использовании ручного труда
в строительстве практически невозможно ставить точные сроки
исполнения. Это не так. В связи с тем, что все наши объекты собраны
вручную, мы выработали схему, при которой каждый этап работы
сдается вовремя.
Секрет прост – все зависит от грамотного менеджмента
на объекте, назовем это так.
На деле это выглядит так
Плотник получает максимально
понятную задачу с геометрическими
параметрами из рабочей
документации.
Задача ставится на небольшое
количество дней, с конкретной
разбивкой каждого дня по
элементам.
Так плотник четко видит сроки окончания
каждого этапа, и его эффективность
увеличивается.
Изготовление
На основании утвержденного проекта мы
изготовим сруб вашего будущего дома. Все работы
на этом этапе ведутся на производственной базе
Smart Wood в Подмосковье постоянной командой
профессиональных плотников. Вы в любой момент
сможете посетить производство и увидеть все
своими глазами.
Контроль
Самое сложное в ручном труде – сохранять неизменное качество
выполненной работы. Для решения этой проблемы мы используем
технологические карты и детально проработанную проектную документацию.
А контролирует процесс производства непосредственно собственник
компании Smart Wood – самое замотивированное звено.
Транспортировка и монтаж сруба
Транспортировка сруба
После того, как владелец дома принял готовый
сруб на производственной площадке, мы
разбираем его, маркируем и загружаем
в тентованные автомобили для транспортировки
на участок. Для безопасной перевозки в кузове
автомобиля сооружается защитный каркас.
Многие наши заказчики выбирают для своих
домов уединенные места, поэтому у нас есть
опыт доставки сруба в самые труднодоступные
уголки России.
Монтаж сруба
Как производители сруба, мы лучше знаем br> все его конструктивные особенности. Поэтому br> всегда собираем его на участке самостоятельно br> или силами субподрядчика, но под нашим br> неусыпным контролем.
Что не входит в стоимость, но необходимо
вам до конечного результата?
Что такое сруб?
В нашем понимании сруб — это бревенчатый
остов строения. Он не включает в себя временную кровлю, фундамент, полы.
Что еще понадобится
сделать со срубом?
Сруб нужно будет отшлифовать и покрасить.
Эта необходимая часть работы, которая не входит
в первичную стоимость.
Сервисное
обслуживание
Деревянное строение – сложный технический продукт, который
требует постоянного ухода и профессионального обслуживания.
В составе Smart Wood есть собственная сервисная команда, которая
будет поддерживать ваше строение в идеальном состоянии.
>
Все прошло успешно!
Мы скоро свяжемся с вами