Эрива

Жилой дом
220 m2
#
+3 фото
планировки
ОПИСАНИЕ ПРОЕКТА
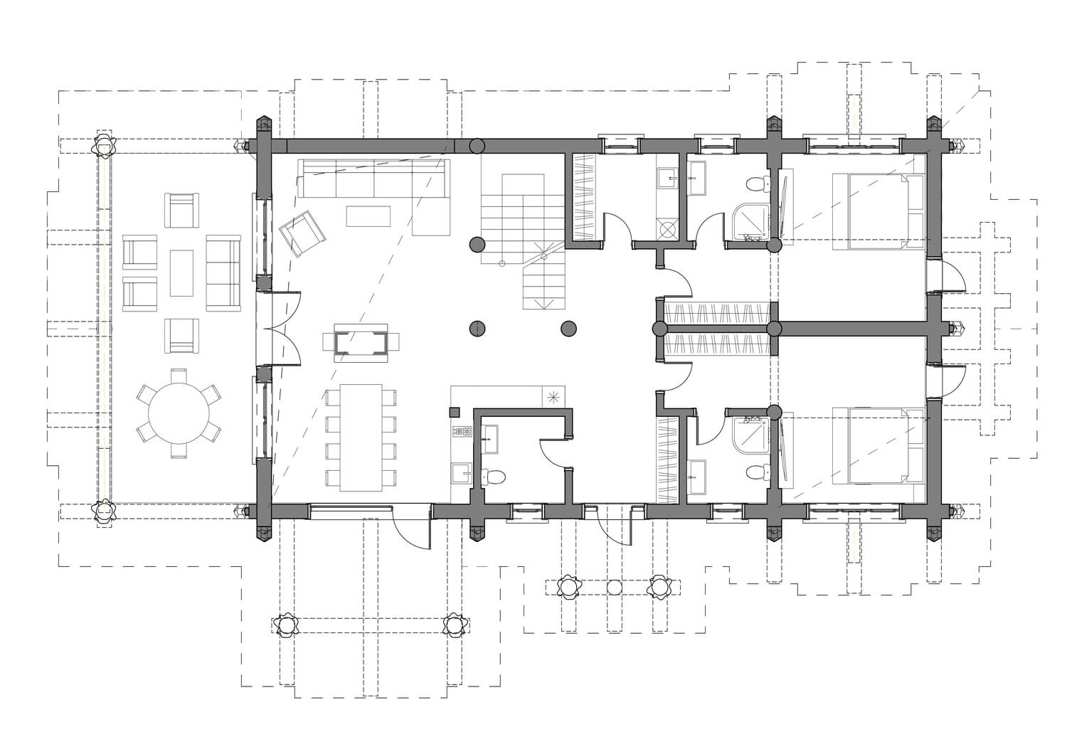
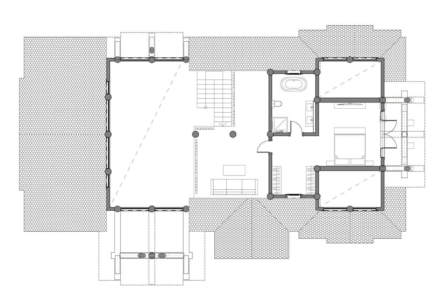
"Эрива" - небольшой жилой дом с огромной гостиной и тремя спальнями. Дом несет в себе две функции. С одной стороны это место для отдыха хозяина комплекса, с другой — здесь нужно было организовать еще две спальни для гостей и большую, комфортную зону отдыха. Поэтому мы условно разделили дом на две части. Второй этаж дома отведен под мастер-спальню. Она, разумеется, самая большая по площади, с собственной просторной ванной комнатой и гардеробной.

На первом этаже расположены обе гостевые спальни — чуть меньше хозяйской, но тоже очень уютные и светлые. Терраса комнат первого этажа общая, но мы зонируем ее с помощью растений, и каждый гость будет чувствовать уединение.

И здесь же, на первом этаже, обустроена большая кухня-столовая и главный козырь этого дома — гостиная. С большим каменным камином, вторым светом, комфортным мягким диваном для отдыха, рассеянным точечным освещением. Камин при этом выходит на две стороны — смотреть на огонь можно как во время отдыха в гостиной, так и за ужином в столовой.
ПАРАМЕТРЫ ПРОЕКТА
Назначение строения
Жилой дом
Площадь строения
220 m2
Стеновой материал
Cибирский кедр от 380 мм в вершине
Угловое соединение
Круглая чаша Square notch
Гарантия
10 лет
Технология
Безусадочная технология, Post&Beam
СТОИМОСТЬ
Теплый контур
по запросу
Сруб
по запросу
ОСТАВИТЬ ЗАЯВКУ
Комплектация
Теплый контур
СРУБ
Друзья, все наши проекты уникальны. Все предоставленные
расчеты имеют ознакомительный характер и основаны на нашем
опыте работы с конкретным заказчиком и его пожеланиями
Вы можете ориентироваться на указанные цифры, но не забывайте,
что строительство деревянного дома — сложный и многогранный процесс.
Он состоит из множества работ, материалов и технологий,
которые меняются на усмотрение заказчика. Поэтому ваш дом может
стоить чуть больше или чуть меньше обозначенной суммы.
Проектные и подготовительные работы
Необходимые изыскания.
Подготовительная работа
Мы все делаем правильно.
Поэтому, прежде чем приступить
к проектированию и строительству,
проводим все необходимые изыскания,
геологию, замеры и топографическую
съемку и привязкой объектов.
Проектная документация
До начала работ мы подготовим для вас полный пакет
проектной документации. Он состоит из архитектурного,
инженерного, рабочего, ландшафтного и дизайн-проектов.
Это ваш гарант отсутствия ошибок при строительстве
и соблюдения всех нормативов.
После того, как работы будут закончены, вы получите
такой же объемный пакет исполнительных документов, где
зафиксировано фактическое исполнение проектных решений.
Они нужны в период эксплуатации здания — для точности
ремонтных работ и реконструкции инженерных сетей.
Плотницкая работа. Изготовление сруба
Изготовление и монтаж сруба
На основании утвержденного проекта мы изготовим сруб вашего
будущего дома. Все работы на этом этапе ведутся на производственной
базе Smart Wood в Подмосковье постоянной командой профессиональных
плотников. Вы в любой момент сможете посетить производство
и увидеть все своими глазами.
Общестроительные работы
Устройство фундамента
Для фундамента этого проекта мы выбрали утепленную
шведскую плиту. Несмотря на изначально высокую стоимость
материалов и работ по этому типу фундамента, в конечном расчете
он получится дешевле других видов благодаря уже готовой
конструкции чистового пола.
Устройство кровли
Нам нравится ручная работа. Для данного
проекта мы использовали фальцевую кровлю
ручной работы. Материал медь 0,3 мм. Пирог
кровли с утеплением 250 мм, утеплитель
Parock, гидро и пароизоляционные пленки
немецкие Delta.
Устройство черновых фронтонов и внутренних перегородок
На основе проектной документации
и теплового расчета мы изготавливаем
деревянный каркас с утеплением, с паро
и гидро - изоляционными пленками Delta
и шумоизоляцией. Каркас изготавливается
под отделку, с конечным покрытием ОСБ.
Инженерные системы
Мы очень тщательно подходим к выполнению
инженерных работ. В стоимость включены: ОВК система,
Вентиляция и кондиционирование, Электроснабжение, слаботочные
сети, пожарная сигнализация. Все системы объединены в одну систему
управления, на основе протокола автоматизации KNX.
Мы работаем с лучшими мировыми производителями
инженерных систем Worman, Rehau, Artex
Устройство с утеплением
черновых полов и перекрытий
На основе проектной документации мы
производим устройство полов и перекрытий
под финишное покрытие полов. Пирог полов
состоит из утепления, шумоизоляции,
гидроизоляции Delta.
Устройство веранд,
террас, крылец
Открытые поверхности - это всегда не просто!
Снег, дождь, перемена климата, плохо влияют
на деревянные горизонтальные поверхности.
Мы умеем использовать нужные материалы
с необходимым покрытием для долговечности
и красоты крылец и веранд.
Устройство окон
Мы стараемся использовать в своих домах
деревянные трехкамерные окна. Наш
любимый материал - лиственница покрытая
Monocoat. Наличники устанавливаются после
окончания финишной отделки.
Отделка цоколя
Один из завершающих этапов чистовой
внешней отделки. Здесь очень важна
искусная кладка и правильный выбор
материала.
Устройство каркаса
душевых
Очень интересно в деревянном строении
совмещать усадочные и безусадочные
элементы, особенно это касается мокрых
зон где еще важна изоляция дерева от воды.
Чистовая
шлифовка дома
Шлифовка деревянных поверхностей дома
– это очень сложная и необходимая
операция. Дерево подготавливается под
покраску. В зависимости от объемов
материала, местонахождения дома и
графика производства работ, мы
подбираем шлифовку либо ручную либо
ручную и механическую.
Устройство
печи и камина
Это целая наука работать укладка печей
и камином, мы сотрудничаем со множеством
печников и каменщиков. Очень важным
моментом является искусная отделка
устройства.
Отделка строения
Чистовая внешняя
отделка фронтонов
Дранка, декоративная доска, необрезная
доска, необрезная причерченная доска,
штукатурка и многое многое другое.
Вариантов отделки множество. Всегда
интересно совмещать массив с другими
фактурами
Внутренняя чистовая отделка
каркасов стен и фронтонов
Это один из первых и основных этапов
внутренней отделки. Мы производим все виды
работ на основе дизайн проекта.
Устройство чистового потолка
Потолки занимают особое место в интерьере деревянного
дома. На этапе создания интерьера будущего строения мы
стараемся использовать различные варианты и комбинации
материалов и технологий обработки, т.о. Делая потолок
в деревянном доме произведением искусства.
Чистовая покраска дома
Первое что мы делаем это выбираем цвет
покраски. Мы производим выкрасы и после
определения с цветом начинается покраска
строго соблюдая технологию производителя.
В своей работе мы используем лучших
производителей покрытий PNZ, Permachink,
Monocot
Герметизация строения
В случае использования безусадочной
технологии строительства деревянного
дома необходимо применение
межшовного герметика.
Укладка чистового пола
У нас покрашены все поверхности, работают инженерные системы
в тестовом режиме, готовы камины и печи. Сейчас самое время
приступить к укладке чистового пола. Ответственный этап.
Особенно не просто совмещать разного рода поверхности
к примеру плитку с деревом.
Монтаж плитки
На основе дизайн проекта, мы подберем
и доставим плитку для необходимых мест
ванны, душевых, кухни, топочных и
прихожих.
Устройство лестницы
Нам нравятся делать уникальные вещи
своими руками. Лестница в данном проекте
будет изготовлена из бревна кедра с проступью
в 150 мм, с перилами столярного качества.
Закупка и установка
сантехнических приборов
На основе плана производства работ
мы делаем график поставки материалов.
Важно чтобы все пришло вовремя и мы
могли установить все подготовки до
окончания отделки
Закупка и монтаж
технического света
Технический свет в деревянном доме –
подсветка в потолке второго света, внешняя
подсветка. Мы стараемся действовать строго
по разработанному проекту освещения.
Подсвечивая торцы , фермы и слепые зоны
строения. Работаем с производителями Erco,
Vnr, knx
Что не входит в стоимость, но необходимо
вам до конечного результата?
Комплектация
Мы не можем включить в стоимость комплектацию строения
мебелью и предметами интерьера. Так же если вы захотите особый
пол к примеру массив или интересную метлахскую плитку она не
войдет в указанную стоимость, но мы можем ее привезти и уложить
за дополнительные деньги
Дополнительные плотницкие,
столярные работы
В деревянном домостроении возможно украсить дом различными
интересными фигурами и инсталляциями. Мы относим эту работу к
комплектации и не можем ее включить в указанную стоимость.
Ландшафтные
работы
Пока мы не знакомы с вами и с вашим участком мы не сможем
даже примерно оценить этот вид работ. Но мы имеем опыт работы
и считаем что хороший ландшафтный проект и его реализация
не только придают полноценности вашему строению и участку
но и увеличивают его ликвидность.
Сервисное
обслуживание
Деревянное строение - сложный технический продукт, требующий
постоянного ухода и профессионального обслуживания. Мы имеем
собственную сервисную команду специалистов которая будет
поддерживать ваше строение в идеальном состоянии
Каждый наш проект уникален. Мы не даем цену
за кубический метр материала, потому что рассчитываем
стоимость каждого строения с нуля. И она напрямую зависит
от конструктивных особенностей, места строительства
и ваших желаний.
Каждый наш проект уникален. Мы не даем цену
за кубический метр материала, потому что рассчитываем
стоимость каждого строения с нуля. И она напрямую зависит
от конструктивных особенностей, места строительства
и ваших желаний.
Проектные и подготовительные работы
Корректировка вашего
проекта или разработка
нового
Чаще всего мы реализуем
собственные идеи. Но мы можете прийти
к нам с готовым проектом стороннего
архитектора – в этом случае мы берем
на себя разработку деревянной
конструкции проекта.
Деревянные конструкции
Эта часть проектной документации необходима
для нашего производства. Включает в себя детальную
проработку каждого элемента сруба и конкретное
техническое задание для плотника.
Подготовительные работы
Заготовка леса
В зависимости от особенностей конкретного проекта в работе
мы используем свежеспиленный лес или сухой материал. На нашем
складе всегда есть запас материалов, но нужно помнить,
что их количество ограничено
Традиционно период заготовки леса длится с конца ноября по конец
марта. Поэтому задумываться об изготовлении сруба лучше в начале
осени — так вы успеете сформировать запрос и гарантированно
получите лучшие материалы.
Транспортировка
материала
Кедр и лиственницу мы везем с Алтая
и из Красноярского края, а сосну из
Кировска. Обычно доставка леса на нашу
производственную базу занимает около
недели, поэтому мы перевозим его
тентованными фурами – в них древесина
хранится лучше.
Первым делом после доставки
леса на производственную площадку
мы проходим по нему скобелями, чтобы
удалить кору, и обрабатываем его
антисептиком. После чего складируем
для дальнейшего использования.
Изготовление сруба
Планирование
Существует мнение, что при использовании ручного труда
в строительстве практически невозможно ставить точные сроки
исполнения. Это не так. В связи с тем, что все наши объекты собраны
вручную, мы выработали схему, при которой каждый этап работы
сдается вовремя.
Секрет прост – все зависит от грамотного менеджмента
на объекте, назовем это так.
На деле это выглядит так
Плотник получает максимально
понятную задачу с геометрическими
параметрами из рабочей
документации.
Задача ставится на небольшое
количество дней, с конкретной
разбивкой каждого дня по
элементам.
Так плотник четко видит сроки окончания
каждого этапа, и его эффективность
увеличивается.
Изготовление
На основании утвержденного проекта мы
изготовим сруб вашего будущего дома. Все работы
на этом этапе ведутся на производственной базе
Smart Wood в Подмосковье постоянной командой
профессиональных плотников. Вы в любой момент
сможете посетить производство и увидеть все
своими глазами.
Контроль
Самое сложное в ручном труде – сохранять неизменное качество
выполненной работы. Для решения этой проблемы мы используем
технологические карты и детально проработанную проектную документацию.
А контролирует процесс производства непосредственно собственник
компании Smart Wood – самое замотивированное звено.
Транспортировка и монтаж сруба
Транспортировка сруба
После того, как владелец дома принял готовый
сруб на производственной площадке, мы
разбираем его, маркируем и загружаем
в тентованные автомобили для транспортировки
на участок. Для безопасной перевозки в кузове
автомобиля сооружается защитный каркас.
Многие наши заказчики выбирают для своих
домов уединенные места, поэтому у нас есть
опыт доставки сруба в самые труднодоступные
уголки России.
Монтаж сруба
Как производители сруба, мы лучше знаем br> все его конструктивные особенности. Поэтому br> всегда собираем его на участке самостоятельно br> или силами субподрядчика, но под нашим br> неусыпным контролем.
Что не входит в стоимость, но необходимо
вам до конечного результата?
Что такое сруб?
В нашем понимании сруб — это бревенчатый или лафетный
остов строения. Он не включает в себя временную кровлю, фундамент, полы.
Что еще понадобится
сделать со срубом?
Сруб нужно будет отшлифовать и покрасить.
Эта необходимая часть работы, которая не входит
в первичную стоимость.
Сервисное
обслуживание
Деревянное строение – сложный технический продукт, который
требует постоянного ухода и профессионального обслуживания.
В составе Smart Wood есть собственная сервисная команда, которая
будет поддерживать ваше строение в идеальном состоянии.
>
>
Все прошло успешно!
Мы скоро свяжемся с вами